Продается 1 ком. квартира в новостройке: Нижний Новгород, Черкесская ул 47
Коротко
- Номер объявления
- 32894547
- Дата подачи
- 27.02.2026
- Комнат
- 1
- Обновленно
- 11.03.2026
- Тип
- Новостройки
- Улица
- Черкесская ул
- Номер дома
- 47
- В ипотеку
- 1
- Этаж
- 6
- Этажность
- 20
- Материал стен
- Блок
- Балкон
- Балкон
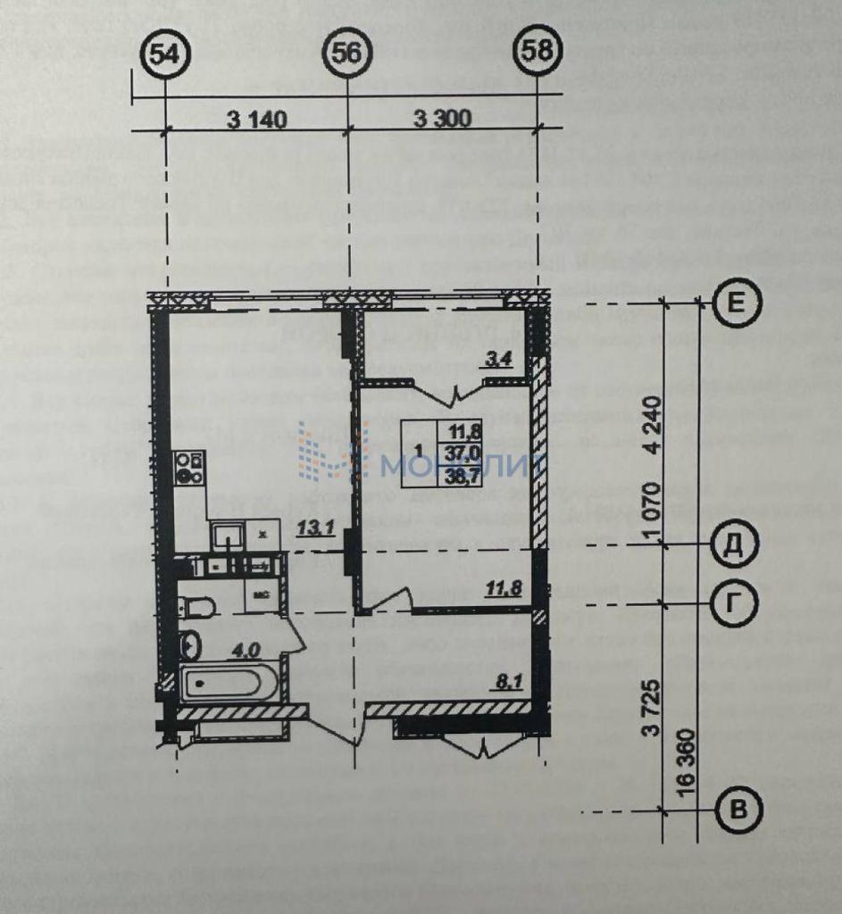
- Площадь общая
- 38.7
- Площадь жилая
- 11.8
- Площадь кухни
- 13.1
- Сан. узел
- Совмещенный
- Срок сдачи
- 2026
- Цена
- 6 650 000 руб.
- Просмотров
- 19
Контакты

0
- Агент:
- Раззоренова Наталья
- Телефон:
- 89300560848
Остерегайтесь мошенников! Не вносите предоплату за услуги риелторов до личного посещения и осмотра объекта недвижимости!
Описание
Нижний Новгород, Кстовский муниципальный округ, деревня Анкудиновка, ЖК Анкудиновский Парк, продается 1-комнатная квартира по переуступке в 47 доме. Квартира не угловая, 6-й этаж.
Площадь квартиры 38.7 кв.м., площадь кухни 13.1 кв.м., площадь комнаты 11.8 кв.м. с выходом на теплую лоджию, удачная планировка с большой гардеробной 8.1 кв.м. Квартира полностью с отделкой под ключ. Дом построен. Ввод в эксплуатацию 2 квартал 2026 года. Квартира без долгов и обременений. Чистая продажа. Цена ниже аналогичных квартир в данном ЖК. Рядом улицы Русская, Черкесская, Академика Сахарова, Ванеева, Романтиков, ЖК Цветы, ЖК Новая Кузнечиха.Номер объекта: #31/1765146/11523
Цена 6 650 000 руб. /171 835 за м2
Если вы позвонили по объявлению и выяснили, что объекта не существует, либо с вас требуют предоплату за просмотр, оставьте жалобу!
Дополнительно
- Мебель
1-комн. Новостройки, Нижний Новгород, Цена до 7 315 000, от 35 м2




Социальные кнопки