Продается 3 ком. квартира в новостройке: Нижний Новгород, Витебская ул 1
Коротко
- Номер объявления
- 32894552
- Дата подачи
- 27.02.2026
- Комнат
- 3
- Обновленно
- 11.03.2026
- Тип
- Новостройки
- Улица
- Витебская ул
- Номер дома
- 1
- В ипотеку
- 1
- Этаж
- 16
- Этажность
- 25
- Материал стен
- кирпично-монолитный
- Балкон
- Балкон
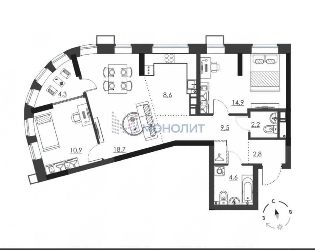
- Площадь общая
- 76.5
- Площадь жилая
- 44.4
- Площадь кухни
- 1
- Сан. узел
- Совмещенный
- Срок сдачи
- 2027
- Цена
- 15 038 900 руб.
- Просмотров
- 17
Контакты

0
- Агент:
- Раззоренова Наталья
- Телефон:
- 89300560848
Остерегайтесь мошенников! Не вносите предоплату за услуги риелторов до личного посещения и осмотра объекта недвижимости!
Описание
Нижний Новгород, Канавинский район, ЖК Первый дом в Нижнем, жилой квартал, воплощающий преимущество технологий и продолжает архитектурные традиции города. О квартире: предчистовая отделка, отделена грязная зона при входе, окна на 2 стороны света, санузел с размещением ванны, теплая лоджия, 2 санузла, гардеробная. Кирпичный фасад повторяет натуральные оттенки башен кремля. Дом бизнес-класса, своя закрытая территория, подземный паркинг, двор без машин, кладовые. Напротив дома станция метро Чкаловская, Парк 1 Мая, улицы Чкалова, проспект Ленина, площадь Комсомольская, ЖК Аквамарин, ЖК Жюль Верн. Приобретайте квартиру мечты уже сейчас!
Номер объекта: #31/1753753/11523
Цена 15 038 900 руб. /196 587 за м2
Если вы позвонили по объявлению и выяснили, что объекта не существует, либо с вас требуют предоплату за просмотр, оставьте жалобу!
Дополнительно
- Мебель
Посмотреть все объявления (5): Продажа 3 комн. новостроек Канавинский, Нижний Новгород
3-комн. Новостройки, Канавинский, Цена до 16 542 790, от 69 м2




Социальные кнопки